Woonoppervlakte
Circa 82 m²
Perceeloppervlakte
Circa 163 m²
Bouwjaar
Gebouwd in 1910
Aantal kamers
3 kamers (2 slaapkamers)

Reijerskoop 79

2771 BE, Boskoop (Zuid-Holland)

Ben je op zoek naar een instapklare woning met moderne voorzieningen, uitstekende ligging en parkeergelegenheid op eigen terrein? Zoek niet verder! Deze schitterende 2-onder-1 kapwoning aan de Reijerskoop 79 in Boskoop is in 2022 compleet verbouwd en biedt al het comfort dat je maar kunt wensen. De woning heeft een woonoppervlakte van 82 m² gelegen op een perceel van 163 m².

De woning ligt daarnaast op een prachtige locatie, op loopafstand van het centrum via de hefbrug Boskoop en op loop-/fietsafstand van buitengebied. Verder liggen er diverse scholen nabij de woning, evenals supermarkten,
winkelaanbod en horecagelegenheid. Boskoop is centraal gelegen in het Groene Hart. De woning is goed te
bereiken, met op minder dan 10 minuten fietsen het NS-station van Boskoop en de dichtstbijzijnde uitvalsweg (A12) op een klein kwartier rijden gelegen. Hierdoor staat u binnen no time in steden als Gouda, Leiden, Rotterdam, Utrecht, Amsterdam en Den Haag.

Indeling:
Begane grond
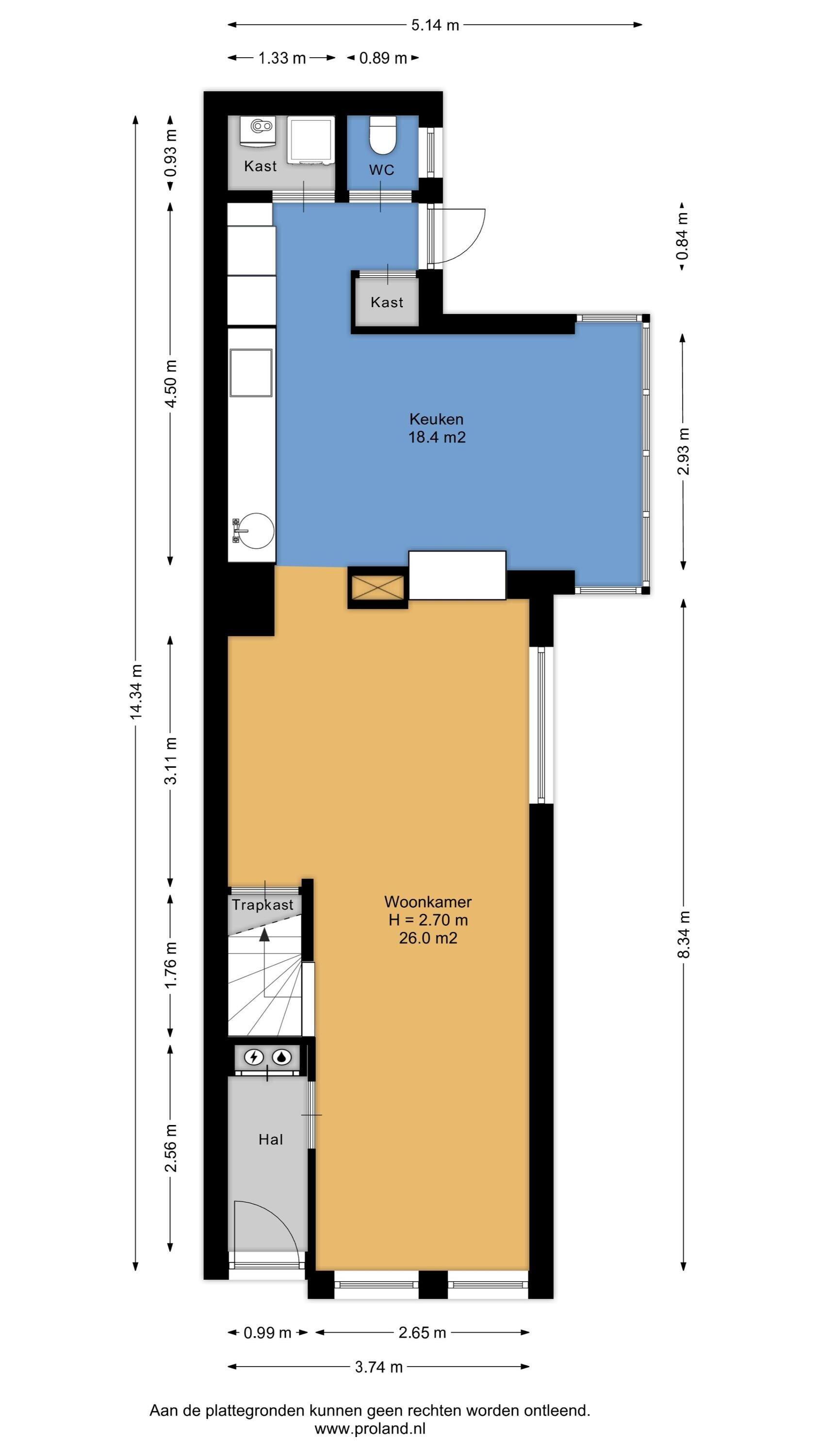
Bij binnenkomst word je verwelkomd in de lichte entree, die toegang biedt tot de meterkast en de gezellige woonkamer. De woonkamer is een heerlijke ruimte die door de grote ramen veel natuurlijk licht binnenlaat. De houten vloerdelen geven de woonkamer een warme uitstraling en de handige trapkast biedt extra opslagruimte. Dit is een perfecte plek om tot rust te komen of tijd door te brengen met gezin en vrienden.

De moderne keuken(Modulnova) bevindt zich in de aanbouw en is in 2022 geplaatst. Een ware aanwinst voor de culinaire liefhebbers. Deze ruimte is uitgerust met stijlvolle apparatuur, waaronder een kookplaat, afzuigkap, stoomoven, combi-oven/magnetron, koel- en vriescombinatie, vaatwasser en een Quooker. De vloerverwarming maakt het koken nog aangenamer, vooral tijdens de koudere maanden. Via de keuken heb je toegang tot het praktische washok, waar de opstelplaats voor de c.v.-ketel zich bevindt, evenals de aansluiting voor de wasmachine en droger. Ook de toiletruimte bevindt zich in deze praktische zone van de woning.

1e verdieping
De trap in de woonkamer leidt naar de 1e verdieping, waar je een lichte overloop treft die toegang biedt tot twee comfortabele slaapkamers en de badkamer. Beide slaapkamers zijn prettig van formaat, waardoor ze geschikt zijn voor zowel een volwassene als kind. Een bijzonder kenmerk van deze verdieping is het riante dakterras, dat een prachtig uitzicht biedt en de perfecte plek is voor een ontspannen moment in de zon, een barbecue met vrienden of gewoon om te genieten van een goed boek.

De moderne badkamer is een luxe toevoeging aan dit huis en beschikt over een ruime inloopdouche, een wastafel en een tweede toilet. Extra opslag mogelijkheden zijn te vinden in de bergvliering, welke bereikbaar is via een luik op de overloop.

Buitenruimte
De zonnige achtertuin is een waar paradijs voor de zonliefhebber. Met een terras waar u heerlijk kunt ontspannen en een overkapping waar u van de schaduw kunt genieten is deze buitenruimte perfect.
De tuin is gemakkelijk bereikbaar vanuit de woonkamer, waardoor binnen en buiten naadloos in elkaar overgaan. De ruime berging naast de woning is handig voor de fietsen en voor het opbergen van bijvoorbeeld het tuingereedschap e.d.

Bijzonderheden:
- uitgebouwde 2-onder-1 kapwoning
- compleet gerenoveerd/ verbouwd in 2022
- parkeren op eigen terrein
- tuin op het zuiden
- moderne keuken (2022)
- 2 slaapkamers
- volledig geïsoleerd
- dubbele beglazing
- nabij het centrum van Boskoop
- energielabel D (de woning is inmiddels compleet geïsoleerd, bij het aanvragen van een nieuw energielabel zal dit een stuk hoger uitvallen)

Kortom, deze woning combineert modern comfort met een uitstekende locatie. Ideaal voor starters, gezinnen of zelfs als investering! Mis deze kans niet om de eigenaar te worden van deze prachtig verbouwde woning aan de Reijerskoop 79 in Boskoop. Neem contact op voor een bezichtiging!

Plattegronden

Overdracht

Koopsom
€ 419.500 k.k.
Status
Verkocht
Aanvaarding
In overleg

Bouw

Object type
Eengezinswoning, 2 onder 1 kapwoning
Soort bouw
Bestaande bouw
Bouwjaar
1910
Soort dak
Zadeldak

Oppervlakte en inhoud

Woonoppervlakte
82 m²
Perceeloppervlakte
163 m²
Inhoud
327 m³
Externe bergruimte
14 m²
Gebouwgeb. buitenruimte
13 m²

Indeling

Aantal kamers
3 kamers (2 slaapkamers)
Aantal badkamers
1 badkamer
Badkamervoorzieningen
Toilet, douche, wastafel
Aantal woonlagen
2 woonlagen

Energie

Energielabel
D
Energielabel registratie
07-02-2022
Isolatie
Dakisolatie, muurisolatie, vloerisolatie, dubbel glas, volledig geïsoleerd
Verwarming
Cv-ketel, vloerverwarming gedeeltelijk
Warm water
Cv-ketel
Cv ketel
Vaillant uit 2022 (eigendom)

Buitenruimte

Ligging
Aan drukke weg, open ligging
Balkon / dakterras
Dakterras
Tuin
Achtertuin
Afmetingen achtertuin
105 m² (17.5 meter diep en 6 meter breed)
ligging tuin
Gelegen op het westen en

Garage

Soort garage
Geen garage

Energieverbruik in Boskoop

Energielabel deze woning

Energielabel D

Publicatie energielabel: 07-02-2022

Stroomverbruik per jaar

3390 kWh

(Gemiddelde twee onder een kap in Boskoop)

Gasverbruik per jaar

1460 m³

(Gemiddelde twee onder een kap in Boskoop)

* Cijfers zijn afkomstig van het CBS en bedoeld als indicatie en kunnen verschillen voor deze woning

Indicatie hypotheeklasten

Eigen inleg:
Spaargeld / overwaarde

Rente:
Laagste 10-jaars rente

Laagste 10-jaars rente

2,98% - Centraal Beheer Groen... - NHG


3,25% - Centraal Beheer Groen... - 80%

Laagste 20-jaars rente

3,29% - Centraal Beheer Groen... - NHG


3,52% - Centraal Beheer Groen... - 80%

Laagste 30-jaars rente

3,41% - Centraal Beheer Groen... - NHG


3,74% - Centraal Beheer Groen... - 80%


Hypotheek:

Bruto maandlasten: € 0 p/m

Netto maandlasten: € 0 p/m

Hoe berekenen we dit?

Het rentepercentage is gebaseerd op de laagste 10 jaars vaste rente voor één hypotheekdeel. De vermelde rente (3.25% zonder NHG) is gecontroleerd op 30-12-2025. Deze berekening is gebaseerd op een annuïteitenhypotheek die volledig wordt afgelost, waarbij de maandlasten gedurende de gehele looptijd gelijk blijven. De werkelijke rente en netto maandlasten kunnen variëren, afhankelijk van uw persoonlijke situatie en de hypotheekverstrekker. Raadpleeg een financieel adviseur voor een nauwkeurige berekening en advies. Aan deze berekening kunnen geen rechten worden ontleend; het dient enkel als indicatie.

Documentatie

Kadastrale kaart

Leefomgeving

Plattegronden PDF

WOZ waarderapport

BAG uittreksel

Aanslag-gem-watersch-belasting-2025-1

Lijst-van-zaken

Bekijk onze website

Zonnegrenzen bekijken

Op de kaart

Inwoners in Boskoop

Cijfers voor postcodegebied 2771

Totaal aantal inwoners
16130 inwoners
Mannen
50%
Vrouwen
50%

Inwoners in Boskoop

Cijfers voor postcodegebied 2771

tot 15 jaar
16%
15 tot 25 jaar
13%
25 tot 35 jaar
24%
45 tot 65 jaar
28%
65 en ouder
20%

Huishoudens in Boskoop

Cijfers voor postcodegebied 2771

Eenpersoons zonder kinderen
33%
Meerpersoons zonder kinderen
32%
Huishoudens zonder kinderen
65%

Huishoudens in Boskoop

Cijfers voor postcodegebied 2771

Huishoudens met één kind
6%
Huishoudens met meerdere kinderen
29%
Huishoudens met kinderen
35%

Woningen in Boskoop

Cijfers voor postcodegebied 2771

Woningen voor 1945
19%
Woningen tussen 1945 en 1965
13%
Woningen tussen 1965 en 1975
20%
Woningen tussen 1975 en 1985
19%
Woningen tussen 1985 en 1995
10%

Woningen in Boskoop

Cijfers voor postcodegebied 2771

Woningen tussen 1995 en 2005
9%
Woningen tussen 2005 en 2015
6%
Woningen na 2015
5%
Huurwoningen
40%
Koopwoningen
60%

Overige in Boskoop

Cijfers voor postcodegebied 2771

Gemiddelde WOZ waarde
€ 263.000,-
Personen onder de 65 met uitkering
5%

Overige in Boskoop

Cijfers voor postcodegebied 2771

Adressen per km²
889
Stedelijkheid (schaal 1 op 5)
40%
Postcode kaart 2771 Gemeente kaart alphen aan den rijn

Indien u vragen heeft of u wilt een bezichtiging inplannen, dan kunt u gebruik maken van het formulier hiernaast. Er zal daarna op korte termijn contact met u worden opgenomen.

Euromarkt 3

2408 BA, Alphen aan den Rijn

0172 - 234 406 info@houtmandevogel.nl www.houtmandevogel.nl

Over Houtman & de Vogel

Bent u van plan om uw woning te verkopen? Zoek niet verder! Bij Houtman & de Vogel profiteert u van ervaren makelaars met uitgebreide kennis van de lokale woningmarkt. Ons doel is om de best mogelijke verkoopprijs en voorwaarden voor onze klanten te realiseren. Benieuwd hoe we dat doen? Maak een afspraak en ontdek wat wij voor u kunnen betekenen.

Ons kantoor is gevestigd op de Euromarkt 3 in Alphen aan den Rijn. Het heeft een professionele uitstraling en is voorzien van opvallende tv-schermen in de etalage waar uw woning wordt gepresenteerd. U kunt ons eenvoudig bereiken en er is gratis parkeergelegenheid voor de deur!

Houtman & de Vogel staat bekend om zijn actieve en resultaatgerichte aanpak, gekenmerkt door een no-nonsense mentaliteit. Wij zijn 6 dagen per week en 16 uur per dag bereikbaar. U kunt bij ons terecht voor bezichtigingen of een (gratis) waardebepaling, niet alleen tijdens kantooruren, maar ook in de avonduren en op zaterdag.

Over Houtman & de Vogel
Reviews Houtman & de Vogel Makelaardij

Reijerskoop 79, Boskoop

€ 419.500 k.k. - Verkocht

Helaas, deze woning is verkocht!

Net te laat, deze woning is al verkocht. Laat een zoekopdracht bij ons achter zodat wij u direct kunnen helpen wanneer er nieuw aanbod beschikbaar komt.